2 – Layout ou Arranjo Físico

É por meio do layout ou arranjo físico que a empresa irá definir como será a distribuição dos setores que compõem a sua estrutura organizacional, e dos recursos utilizados pela empresa, no espaço disponível, tais como: estações de trabalho para as pessoas, mercadorias, gôndolas, estantes, prateleiras, vitrines, móveis, máquinas e equipamentos, etc.
Um bom layout ou arranjo físico proporciona uma série de benefícios, para a empresa, como por exemplo:

• Aumento de produtividade;
• Redução de desperdício e do retrabalho;
• Facilidade na localização dos produtos pelos clientes, na área de vendas;
• Melhoria na comunicação entre as pessoas de diferentes setores.

Para que a organização tenha layout ou arranjo físico adequado, faz-se necessário a contratação de profissional qualificado. Caso isso não seja possível, faça você um esquema de distribuição das áreas da empresa.

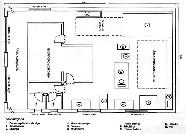
Exemplo de layout



Copyright © 2010 AIEC.